歡迎來到 東莞市錦鴻塑膠五金模具配件有限公司 網站!

模具配件 VODA

中國地區服務熱線:

180 3348 3551

電話:0769-87330001轉8802

型號: EP -[待選參數]

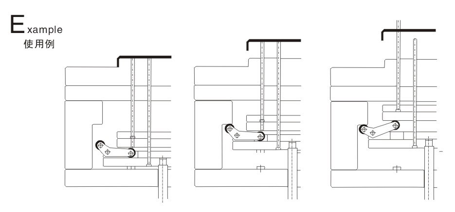
模板加速器 EP

PLATE ACCELERATOR

簡易裝配便能達到良好的加速效果。
         安裝空間小,優化模具結構。
         Simple assembly vill be able to achieve a good speedup.
         Small installction space,optimization of mold structure.

TypeABCDEFGH
max.
L
max.
MNPTMax.
Force
EP.20081320813.225.89.411.4613.65.55152.5x10M3x1275kg.
EP.25101625101632.311.814.37176.8618.53x12M4x16125kg.
EP.37152237.5152248.517.721.510.525.510.28254x16M6x25250kg.
EP.50203050203064.623.628.6143413.610345x20M8x30500kg.

歡迎咨詢188-模板加速器EP 產品相關問題, 咨詢電話 ? 0769-87330001轉8802,或咨詢在線客服 (工作日:8:30-18:00)。

訂購:188-模板加速器EP

跟此產品相關的產品